
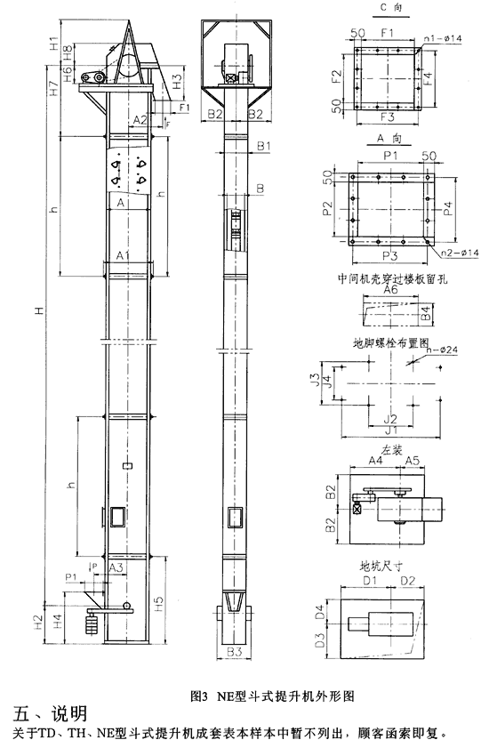
產品概述
NE型斗式提升機為板鏈式、重力誘導卸料的提升設備,所以也常叫做板鏈式提升機。NE型斗式提升機適用于垂直輸送粉狀、顆粒狀、小塊狀磨琢性或無磨琢性物料,如生料、水泥、煤、石灰石、干粘土、熟料等。產品特點
- 采用的板鏈有較高的剪切強度、疲勞強度及耐磨性能,運轉故障率低,使用壽命長;
- 采用較低的鏈速度(o.5米/秒);
- 采用大容量的料斗和較小的斗距,驅動功率低且輸送量大。尤為適應提升破碎后的石灰石和水泥熟料(≥NE50)。
技術參數
型號 | 輸送 | 斗速 (米/秒) | 主軸 (轉/分) | 物料 (毫米) | 料 斗 | 運行部 (公斤/米) | ||
容積 | 斗寬 | 斗距 | ||||||
NEl5 | 15 | 0.5 | 15.54 | <40 | 2.5 | 250 | 203 | 27.5 |
NE30 | 32 | 16.45 | <50 | 7. | 300 | 305 | 35 | |
NE50 | 60 | 16.45 | <50 | 15.7 | 300 | 305 | 64 | |
NEl00 | 110 | 14.13 | <70 | 35 | 400 | 400 | 89 | |
N6150 | 170 | 14.13 | <70 | 52.2 | 600 | 400 | 112.3 | |
NE200 | 210 | 10.9 | <100 | 84.6 | 600 | 500 | 134 | |
NE300 | 320 | 10.9 | <100 | 127.5 | 600 | 500 | 188 | |
NE400 | 380 | 8.3 | <120 | l 82.5 | 700 | 600 | 205 | |
NE500 | 470 | 7.1 | <120 | 260.9 | 700 | 700 | 223 | |
NE600 | 600 | 7.I | <120 | 330.2 | 700 | 700 | 274 | |
NE800 | 800 | 6.2 | <140 | 501.8 | 800 | 800 | 313 | |

蘇公網安備 32062102000309號